Home
Biography
Philosophy
Projects
Collaborations
About us
Contacts
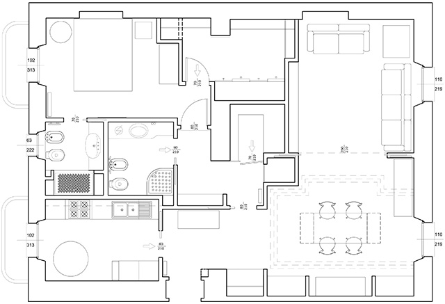
Stato di fatto
Stato di progetto
Photos
Project
Before-After
360° Panos
Rossana Fusi Architect
Via G.P. Puricelli, 8 - 20147 Milan
Phone: +39 338 6278000 - email: studio@rossanafusi.it
- by appointment only -