Home
Biography
Philosophy
Projects
Collaborations
About us
Contacts
Home Studio
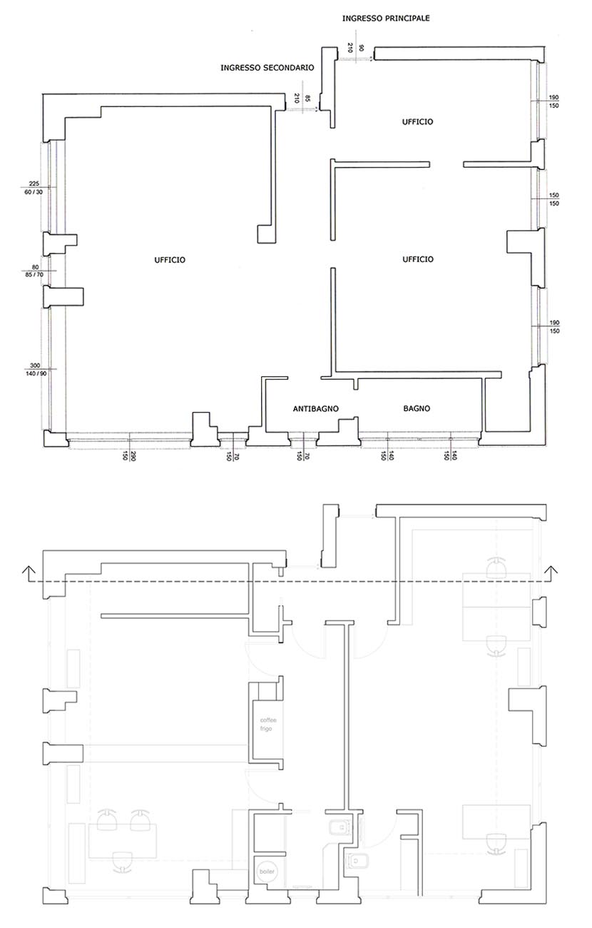
Stato di fatto
Progetto
Photos
Project
Before-After
360° Panos
Rossana Fusi Architect - Via G.P. Puricelli, 8 - 20147 Milan - Italy - Phone: +39 338 6278000 - email: studio@rossanafusi.it - by appointment only -