Intervento di ristrutturazione di un appartamento di piccole dimensioni destinato a una giovane professionista.

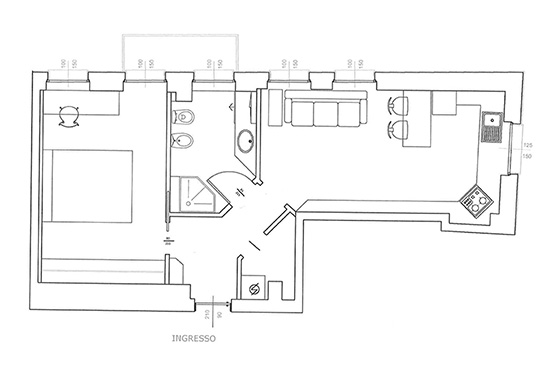
Demolendo il tavolato che delimitava la piccola cucina, si è ottenuto un collegamento funzionale e visivo tra la zona living e l'angolo cottura.

Il bagno è stato allargato e reso più funzionale attraverso l'istallazione di un piatto doccia spazioso e la realizzazione di un piano rivestito di tesserine di micro mosaico destinato a un lavabo da appoggio.

Un ripostiglio-lavanderia all'ingresso regolarizza il muro perimetrale frastagliato giocando sui volumi e sulla linea diagonale.

Perspectives

Rossana Fusi  Architect - Via G.P. Puricelli, 8 - 20147 Milan - Italy - Phone: +39 338 6278000  - email: studio@rossanafusi.it - by appointment only -