Home
Biografia
Filosofia
Progetti
Collaborazioni
Dicono di noi
Contatti
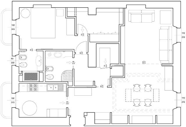
Stato di fatto
Stato di progetto
Foto
Progetto
Prima-Dopo
Panoramiche 360°
Rossana Fusi Architetto
Via G.P. Puricelli, 8 - 20147 Milano
Tel 338 6278000 - email: studio@rossanafusi.it
- solo su appuntamento -