Home
Biografia
Filosofia
Progetti
Collaborazioni
Dicono di noi
Contatti
Home Studio
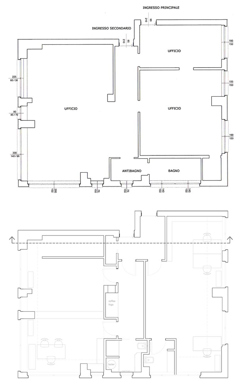
Stato di fatto
Progetto
Foto
Prima-Dopo
Panoramiche 360°
Rossana Fusi Architetto - Via G.P. Puricelli, 8 - 20147 Milano - Tel 338 6278000 - email: studio@rossanafusi.it - solo su appuntamento -