Home
Biografia
Filosofia
Progetti
Collaborazioni
Dicono di noi
Contatti
Foto
Panoramiche 360°
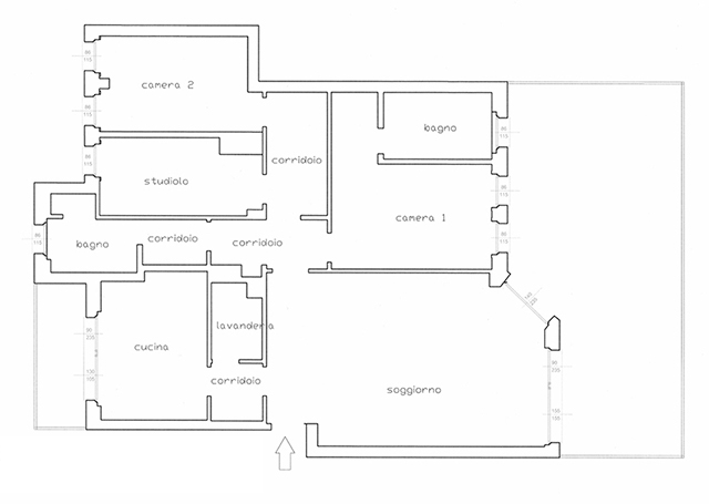
Stato di fatto
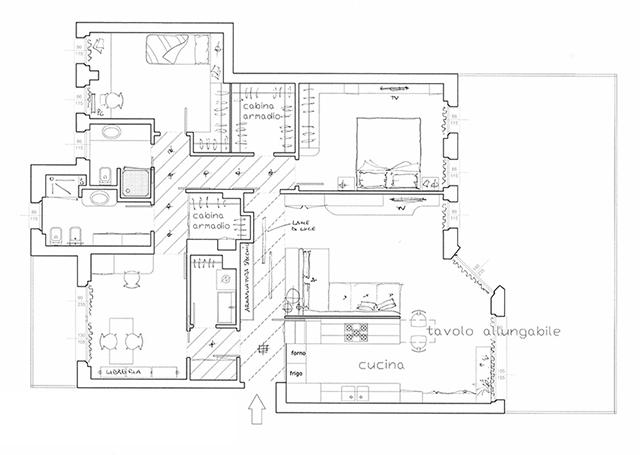
Soluzione 1 - SCELTA
Progetto
Descrizione progetto
Rossana Fusi Architetto
Via G.P. Puricelli, 8 - 20147 Milano
Tel: 338 6278000 - email: studio@rossanafusi.it
- solo su appuntamento -